Регулировка тяги привода переключения передач
Если перемещение тяги привода переключения передач осуществляется слишком туго, слишком свободно или неопределенно, то имеет место неправильное совмещение между тягой и штоком выбора передач. В нижеследующих параграфах описываются процедуры проверки и регулировки совмещения тяги со штоком.
Припаркуйте автомобиль, взведите ручной тормоз и выключите зажигание.
Только для моделей до 1994 г. вып.
Установите рычаг управления коробки передач в положение задней передачи.
Кулиса является важным компонентом коробки передач ВАЗ 2109. При его выходе из строя или неудовлетворительной работе кулису легко можно поменять, отремонтировать.

Внешний вид устройства
Есть два вида кулис:
Принципиальной разницы между двумя типами агрегатов нет. Плюс короткоходной заключается в том, что она на доли секунды обеспечивает более быстрое переключение передач.
Не верьте тем, кто утверждает, что короткоходка положительно влияет на динамику. Между кулисой и динамикой автомобиля нет никакой связи. Но короткоходка имеет свои плюсы.
Комплект для замены
Переходим к делу
Короткоходная кулиса для ваз 2109 для изготовления требует такие инструменты:
- Болгарка и отрезной круг по металлу либо на худой конец ножовка по металлу
- Кусок трубы и кусок плоского металла
- Сварка (сварочный аппарат)
- обязательно приобретите карданчик рычага от Лада Калина
- На фото отмечены места, где вам необходимо будет сделать разрез
- Все достаточно просто: вам нужно будет снять с автомобиля кулису
- При чем всю снимать не обязательно (признаюсь, я поступил именно так и немного пожалел – муторно, получается) достаточно будет разобрать вашу шаровую опору (для этого разжать стопорящее металлическое колечко, для того, чтобы пластмассовые лапки крепления разошлись, и высвободился шарик)
- Затем ослабляем хомут возле коробки передач, и отключаем тягу
- После этого аккуратно протаскиваем тягу сквозь грязезащитный чехол, и выходите из машины
- Теперь нужна болгарка с отрезным кругом по металлу, знакомый сварщик со сварочным аппаратом, либо имеющий к нему доступ (есть аппарат и умеете варить сами — вообще зачет)
- Далее болгаркой режем детали, по отметкам на верхней фотографии Затем ввариваем кусочек трубы (с толщиной стенок 2 — 3миллиметра) в тягу и кусок листового металла с толщиной 5 — 6миллиметров
- Эти кусочки непременно должны иметь одинаковую длину, иначе у вас возникнет неприятный перекос, который совсем не желателен и привод будет только хуже работать
- Я для себя удлинил всего на 2сантиметра
- Однако пространство в салоне позволяет удлинить на 3 – 5сантиметров
- Мне сначала двух сантиметров было вполне достаточно, но затем я к ним привык и, кажется мало опять
- Кстати сказать, на счет кусочков — у сварщиков их девать не куда, как правило, найти подходящий проблем не вызывает
- Устанавливается кулиса ваз 2109 короткоходная в порядке обратном снятию
- Однако кроме всего прочего, шарнир с крючком, служащий для предотвращения ошибочного включения задней передачи поднимается автоматически, и перестает попадать в специальную прорезь на блокирующей пластине
- Для того, чтобы избежать этого либо уберите совсем эту пластину (это для особо ленивых) можно ездить и без неё, либо следует перенести её наверх на высоту, на которую поднялся шарнир
Когда кулиса на коробке передач ваз 21093 у вас установлена, остается заменить карданчик тяги, чтобы устранить люфты рычага
Тюнинг трансмиссии ВАЗ 2109
Классическая трансмиссия всех ВАЗов – механика. Она достаточно надежна, дешевая в обслуживании и хорошо подходит для использования на отечественных дорогах.
Для МКПП существует сразу несколько популярных видов тюнинга. Они появились в качестве банальной необходимости улучшить характеристики авто. Основные комплексы работ предполагают:
- Замена кулисы.
- Переделку из 4-ступенчатой в 5-ступенчатую.
- Установку спортивного ряда.
- Модернизацию педального узла.
- Замену главной пары и дифференциала.
Давайте подробно рассмотрим один из вариантов тюнинга. Замена кулисы на короткоходную – полезный тюнинг, который позволит значительно упростить переключение передач. Все мы знаем, что рычаг «девятки» и большинства других автомобилей ВАЗ абсолютно неудобен. Он имеет огромный люфт, который просто ужасно сказывается на точности переключения передач. Если мужчины с длинными кистями еще справляются с ним без каких-либо критических усилий, то женщинам с этим придется совсем уж туго.
Самый простой выход из ситуации – установка на 2109 короткоходного кардана от Лады Калина. Такой тюнинг вам обойдется примерной в 1500 рублей. Вместе с карданом придется обзавестись пыльником от той же модели, потому что родной с ним не станет.
Необходимые подручные средства для работы – набор ключей, шлицевая отвертка и молоток. Также очень хорошо будет иметь помощника.
Причины замены
Есть несколько ситуаций, когда владельцу ВАЗ 2109 приходится или хочется влезать в конструкцию КПП и конкретно работать с кулисой:
- Вытекает масло из-за поврежденного сальника кулисы. Его требуется обязательно заменить;
- Вышла из строя старая кулиска;
- Длинноходку хочется поменять на короткоходку в виду ее преимуществ.
Теперь к вопросу о том, когда замена или ремонт кулисы — это вынужденная мера.
- Существенно увеличился люфт селектора КПП.
- Передачи переключаются с трудностями, при смене скорости появляются посторонние звуки.
- Передачи удается переключить, но с большим прикладываемым усилием.
- Скорости меняются некорректно. Вместо одной включается совсем другая.
- Все или часть передач вовсе невозможно включить.
Даже если возникший люфт пока незначительный, желательно сразу приступить к ремонту или поменять полностью кулиску.
Замена сальника
Если вы обнаружили, что масло в КПП постепенно исчезает, заподозрить в этом можно именно сальник кулисы. Ничего другого не остается, кроме как поменять элемент.
- Первым делом купите новый сальник штока переключения скоростей. Стоит он около 70-100 рублей.
- Слейте масло из коробки, подготовив заранее чистую емкость. Это на тот случай, если будете обратно заливать то же масло. Хотя перед вами отличный повод заодно поменять трансмиссионную смазку.
- Чтобы масло лучше вытекало, открутите предварительно пробку заливки или извлеките шестерню спидометра. Слив масло, закрутите крышку обратно.
- Залезаем под автомобиль и отсоединяем крепежи карданчика рычага КПП.
- Стяните пыльник с карданчика, открутите болты его крепления к штоку переключения скоростей. Проблемный крепеж, с которым придется повозиться.
- Сняв карданчик, демонтируйте пыльник штока.
- Извлекаем поврежденный сальник при помощи шила или подходящих подручных инструментов. Тут главное сам шток.
- На место старого сальника монтируем новый, вдавливаем трубкой соответствующего диаметра.
- Верните на место пыльник, прокрутите карданчик.
- Учтите, болт фиксации карданчика к штоку является регулировочным. Потому закручивайте его точно так же, как было до демонтажа. Иначе некоторые скорости могут не включаться.
После проделанной работы не забудьте проверить результат.
Замена карданчика
Практика показывает, что при возникновении проблем с кулисой вовсе не обязательно полностью ее менять.
У ВАЗ 2109 есть своя болезнь, слабое место — это кардачник кулисы. Его замена на аналог от Калины позволит решить проблему, превратить недостаток в достоинство.
Инструкция по замене карданчика следующая.
- Двумя накидными ключами на 13 открутите хомут, который относится к тяге привода переключателя скоростей.
- Оттяните отверткой пыльник, двигаясь к коробке. Если хотите, снимите его полностью. Так он точно не помешает в процессе ремонта.
- Ключом на 10 открутите болт фиксации на кардане.
- Молотком нанесите несколько аккуратных, не сильных ударов, чтобы сбить кардачик с вала. Пыльник убирайте в сторону, если не сделали это ранее.
- Меняем старый карданчик на деталь от Калины. Она более надежная, эффективная и долговечная.
- Для обратной сборки вам потребуется помощь товарища. Не спешите сразу в конце затягивать хомут.
- Помощник будет из салона выставлять положение рычага КПП в оптимальных точках. Сначала нужно поймать центр, затем отвести рычаг немного вправо, пока вы снизу будете затягивать хомуты.
- Проверьте, хорошо ли включаются передачи. Если да, то продолжаем сборку узла и проверяем обновленную КПП в условиях реальных дорог.
Опыт владельцев ВАЗ 2109 показывает, что при проблемах с кулисой зачастую суть кроется в неудачном заводском карданчике. Поменяв его на аналог от Калины, вам удастся избавиться от дискомфорта и продолжить уверенно эксплуатировать свой автомобиль. Заменив карданчик, конструкция КПП существенно улучшится.
Регулировка
Поменяв кулису или карданчик, следует обязательно отрегулировать работу узла.
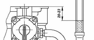
- Включите заднюю передачу, ослабьте натяжение хомута.
- Выставьте селектор коробки в положение, в котором он в идеале должен располагаться при включении заднего хода.
- Затяните хомут обратно.
- Аналогичная операция выполняется с остальными скоростями.
Бывают ситуации среди владельцев ВАЗ 2109, когда со включением задней передачи возникают сложности. Здесь может помочь регулировка.
- Установите рычаг коробки на первую передачу;
- Ослабьте хомут кулисы;
- Проверните привод кулисы против часовой стрелки;
- Поворачивайте привода, пока селектор не прижмется к пластиковому стопору задней передачи. Это вы ощутите без проблем;
- Уперевшись в стопор, затяните под днищем хомут. Все, регулировка выполнена.
Причины
Каковы же могут быть причины того, что не включается задняя передача в автомобиле ВАЗ? На самом деле их может быть очень много, ведь проблема с включением скоростей, так или иначе, кроется в системе трансмиссии и в частности — в самой коробке передач.
Рычаг переключения скоростей в автомобиле ВАЗ 2109
- Неполное выключение сцепления. Как правило, при неправильном выключении сцепления могут плохо включаться все скорости, но иногда эта проблема затрагивает исключительно заднюю передачу.
- Повреждены рычаги или тяги привода КПП. Также может быть ослаблено крепление. Чтобы ликвидировать такую неисправность, необходимо произвести тщательный осмотр агрегата и системы трансмиссии. При надобности рекомендуется заменить все поврежденные компоненты системы.
- Закончилась смазывающая жидкость в коробке переключения передач. В этом случае проблема с включением скоростей будет касаться всех без исключения передач. Поэтому вероятность такой проблемы, если не включается только задняя скорость, очень мала. Как вы поняли, следует проверить уровень расходного материала в системе и, если нужно, добавить масла в КПП.
- Плохое трансмиссионное масло. Трансмиссионная жидкость уже потеряла свои свойства и не может в полной мере обеспечить смазывание всех компонентов коробки передач. В этом случае проблема также коснется всех без исключения передач, хотя на практике происходили случаи, когда проблемы были с включением именно задней скорости. В этом случае потребуется замена масла.
- Плохо отрегулированная кулиса: необходимо произвести регулировку кардана кулисы коробки передач. Из-за плохой регулировки кулисы задняя передач иногда не только не включается, но и вылетает. Эта проблема является одной из самых распространенных среди автомобилей ВАЗ 2109, поэтому ее устранение мы рассмотрим в первую очередь.
Как самостоятельно продиагностировать сальник коробки
Первыми показателями, свидетельствующими о необходимости замены сальника коробки, являются масляные следы на асфальте после длительного простоя автомобиля
Но при этом важно понимать, что причин этого дефекта может быть несколько (как вариант, не до конца закрученный масляный фильтр). Но, если дело все же в сальнике, важно вовремя обнаружить и устранить проблему, потому что масло за пределами коробки может привести к необходимой ее замене
Чтоб не доводить до таких последствий, стоит периодически проверять масло и отслеживать его уровень в КПП и в двигателе. Кроме того, неисправность сальника может вызвать хруст при переключении скоростей.
Регулириуем кулису КПП на ВАЗ-2110 своими руками
Коробка передач на ВАЗ-2110 иногда начинает барахлить. Если пренебрегать уходом и обслуживанием этого узла автомобиля, то можно получить множество неполадок в работе КПП. Как правило, это неточности в переключении передач, характерное «выбивание» передачи, хруст и лязганье при манипуляциях с рычагом коробки. Некоторые автовладельцы считают, что все эти симптомы свидетельствуют о выходе из строя коробки передач.
Короткоходные кулисы на “девятку”
Такие конструкции разрабатывались исключительно для спортивных моделей, но нашли широкое применение в серийных.
Преимущества короткоходной кулисы ВАЗ-2109, 2114 перед стандартной:
- Более легкое переключение скоростей.
- Уменьшается люфт рычага КПП, особенно при использовании кардана от «Калины».
Из недостатков:
- Необходимо либо покупать, либо самостоятельно делать.
- Чтобы переключить скорость, потребуется большое усилие. Несмотря на меньший ход, такой тип кулисы больше подойдет для сильных не только духом людей.
Но можно не приобретать в магазинах кулису на ВАЗ-2109, 2114, сделать короткоходку из обычной можно, имея небольшие навыки сварщика.
Для этого разрезаете в двух местах старую кулису, привариваете отрезки металлической пластины, чтобы удлинить рычаги. Главное – чтобы новая кулиса стала на свое место, поэтому сначала внимательно изучите рисунок, на котором указаны места разрезов.
Не нашли интересующую Вас информацию? на нашем форуме.
Рекомендуем прочитать:
Какое лучше масло для ваз 2114, рекомендации завода изготовителя, процесс замены
Лада х рей расход бензина. Город, трасса, смешанный цикл
Как заменить подшипник в задней ступице на ваз 2109
Тюнинг двигателя ваз 21124 16 клапанов своими руками
Как снять рулевую колонку на ваз 2107
Ваз 2115 как поменять дворники на
Как подключить прикуриватель на ваз 2107, причины поломки, схема подключения, замена от ВАЗ 2114
Ремонт днища кузова ваз 2107
Для чего нужна кулиса КПП
На самом деле, чаще всего КПП находится в исправном состоянии, но может выйти из строя кулиса.
Можно заменить узел на новый, а можно обойтись грамотной регулировкой кулисы. Регулировка этого элемента поможет устранить неполадки, и убедиться в том, что проблема связана именно с кулисой КПП. Бывает так, что автовладелец начинает просто менять один узел за другим, не разобравшись в проблеме, тратя при этом деньги и время безрезультатно.
Зачем менять кулису
Существуют ситуации, когда приходится вмешиваться в механизм переключения скоростей из-за выхода из строя какого-либо узла. Но бывают случаи, когда требуется крайняя мера – замена кулисы ВАЗ-2109, 2114.
В этих случаях требуется замена:
- Появилась течь масла вследствие повреждения сальника. Можно произвести замену только сальника.
- Полный выход из строя кулисы.
- Вы осознали преимущества короткоходной конструкции и у вас имеются средства на подобного рода тюнинг.
Симптомы выхода из строя механизма переключения скоростей:
Увеличение люфта рычага КПП
Обратите внимание на то, что причиной такого поведения может быть и разболтавшийся кардан. Иногда выкручивается болт его крепления, поэтому для уменьшения люфта достаточно его затянуть, а предварительно следует нанести каплю фиксатора резьбы. Сложно включить передачи
Иногда слышны посторонние звуки. Переключение передач невозможно. Несоответствие положения рычага и включенной скорости. Например, пропадает задняя, на ее месте находится первая.
Если появился небольшой люфт, желательно провести диагностику и выявить поломку узла. Ремонт сделать незамедлительно, иначе в самый неподходящий момент пропадет одна или несколько скоростей.
Кулиса ВАЗ-2109: регулировка, ремонт и замена
Кулиса ВАЗ-2109 – это несложный механизм, с помощью которого происходит переключение передач. Водитель, прикладывая усилие в том или ином направлении, действует посредством кулисы на коробку передач. Тем самым включается нужная скорость. Очень редко, но механизм ломается, и требуется частичная или полная замена. Чаще всего выходит из строя карданчик. Его поменять не составит труда. Но если сломалась сама кулиса, можно задуматься о небольшом тюнинге – сделать короткоходную. Тем самым потребуется меньше усилий, чтобы включить нужную передачу.
Переключение передач на ВАЗ 2109
На «девятке» устанавливают пятиступенчатую ручную коробку перемены передач (КПП). Связь рычага управления выбором передачи с исполнительными устройствами КПП осуществляется чисто механически. Для этого служит стальной стержень, нижний конец которого закреплён на шаровой опоре в корпусе механизма выбора передачи, а верхний снабжён удобно ложащимся в руку водителя набалдашником. Этот рычаг, не совсем обоснованно, в народе называют «кулисой».
У классической кулисы рычаги соединяются при помощи ползуна, который может перемещаться вдоль неё. Особенно эффектно она выглядит в приводе ведущих колёс магистрального паровоза. В автомобильной кулисе элементы имеют определённую свободу, они соединены шарниром, но точка сочленения не может перемещаться вдоль кулисы. Тем не менее, название прижилось.
Рычаг перемены передач «девятки» имеет две степени свободы по три положения в каждой: «вперёд — нейтраль — назад» и «влево — нейтраль — вправо». Это даёт 9 вариантов положения селектора, из которых два (влево назад и вправо назад) не используются. Остальным семи соответствуют пять передач переднего хода, одна передача заднего и нейтраль.
Стандартную кулису ВАЗ 2109 называют длинноходной потому, что точка крепления тяги, ведущей к КПП, расположена довольно близко к шаровой опоре. Расстояние до точки крепления составляет примерно 4 см. При общей длине рычага с набалдашником в 30 см, чтобы переместить шток КПП всего на 2 см, рукоятку КПП надо передвинуть на 15 см. Плюс люфты — получается очень длинноходный вариант, и его нельзя настроить иначе.
Из автоспорта пришла мода — замена кулисы с уменьшением хода. Ремонт предусматривает перенос точки крепления тяги вверх по кулисе на 5–6 сантиметров. Получается короткоходная кулиса на ВАЗ 2109, ход ручки перемены передач уменьшается вдвое. Многим это нравится.
Кулиса от Калины на ВАЗ 2109 тоже улучшает ситуацию.
Короткоходка
Многие до сих пор размышляют на тему того, стоит ли менять свою стандартную заводскую длинноходную кулису на короткоходную.
Решение принимайте сугубо на основе индивидуальных размышлений и не «ведитесь» на высказывания относительно существенного повышения динамики с переходом на короткоходку.
Реальная разница между короткоходкой и длинноходкой приведена в таблице.
Выводы отсюда делайте сами — нужна вам такая кулиска или нет. В плане замены нет ничего сложного. Вопрос лишь в покупке.
Потек сальник штока переключения передач? Как заменить сальник кулисы?
Сегодня мы разберемся как поменять сальник своими руками и сможем сэкономить N-ю сумму денег. Существует всего два способа замены сальника кулисы ваз 2108, 2109, 21099, 2113, 2114, 2115. Первый – замена сальника кулисы на смотровой яме с выбиванием втулки вместе с сальником. Второй способ, не требует наличия смотровой ямы, но потребует от Вас определенной ловкости рук, гибкости тела и наличия одного (двух) длинных саморезов.
Нам понадобится: – два ключа на 13, – ключ на 10, – вороток или отвертка для выбивания втулки сальника, – небольшой молоток, – торцовая головка на 22, – силиконовый герметик.
Запчасти: – сальник штока переключения передач – пыльник карданчика
Приступим к замене!
При помощи двух ключей на 13 ослабляем хомут тяги управления коробкой передач (предварительно соединение тяги и карданчика можно пометить, Для того чтобы позже не заниматься регулированием включения передач) и отсоединяем тягу с карданчика. Если откручивается плохо проливаем все жидкостью WD-40.
Оттягиваем пыльник назад и ключом на 10 откручиваем болт крепления карданчика к штоку переключения передач. Снимаем карданчик и пыльник. С помощью отвертки выбиваем втулку с коробки передач.
Автоматическая коробка передач на ВАЗ 2109
Первой моделью, послужившей плацдармом для установки АКПП среди автомобилей ВАЗ стала 2115. Сейчас автоматическая коробка изредка встречается на машинах 2109, 2110, 2113, 2114, 2115 и 99. Модели ВАЗ, выпущенные в 00-х, Лада Калина и Лада Гранта стали первыми отечественными легковыми автомобилями с заводской комплектацией, включающей коробку автомат.
Вариант №1
На данный момент у всех желающий установить на «девятку», 2113 или 2114 АКПП есть два варианта. Первый – это поставить контрактную автоматическую коробку от Тойоты Короны. Несомненные плюсы такой модернизации:
- Б/у вариант АКПП легко найти практически на любом авторынке;
- Она имеет умеренную цену;
- Коробке Тойоты Короны при установке не требуется специальная прошивка.
Вариант №2
Естественно, второй вариант установки АКПП – обратиться к официальному дилеру ВАЗ в вашей области. Увидев заинтересованность водителей в таком тюнинге, они также взялись за его осуществление. Особенности:
- Лицензированная коробка передач с гарантией от 1,5 года;
- АКПП полностью японской сборки, производится фирмой Nissan.
Следует сразу отметить, что вариант заказа установки АКПП у официального дилера надежнее, но и цена при этом примерно вдвое выше.
Стоит ли овчинка выделки?
При всех своих преимуществах, по правде говоря, АКПП на 2113, 2114, а тем более на 2109 встречаются очень редко. На таких автомобилях автомат можно считать просто дорогим излишеством. Мало того, что АКПП сама по себе несколько ухудшает характеристики авто, она избавляет от главного преимущества отечественных машин – экономичности. Так вы потеряете не только на покупке, но и расход бензина наверняка станет больше.
Виниловые наклейки на авто — интересная тема!
С чего начать ваш автотюнинг вы узнаете в нашей статье .
Разнообразие за кулисами
Несмотря на разные модели конструкций, существует только два типа:
- Длинный курс (стандартный, ранее установленный на автомобиль модели 2109 и т. Д.).
- Коротконогий (установлено на калину авто).
Конструктивно они очень похожи, отличаются только размерами. Преимущество коротких ходов в том, что с их помощью переносы включаются легче и быстрее.
Однако за кулисами сложилось много мифов: некоторые утверждают, что динамические характеристики автомобиля значительно возросли. Это все неправильно, нет никакой связи между динамикой автомобиля и осмотром крыльев. Но все же есть преимущества перед стандартными для короткого хода.
Как заменить сальник
При обнаружении утечки масла из коробки передач внимательно осмотрите картер. Течь выявит сама себя. Обычно уходит смазка через сальники ШРУСов и кулисы.
В последнем случае для замены вам потребуется выполнить ряд действий:
- Приобрести новый сальник кулисы КПП ВАЗ-2109, 2114. Его цена – около 100 -200 рублей.
- Из коробки передач слить масло полностью, выкрутив снизу заглушку ключом на «17». При необходимости можно и заменить впоследствии смазку. Рекомендуется вытянуть верхний щуп, чтобы облегчить вытекание масла.
- Отсоединяете от рычага кулисы кардан.
- Снимите пыльник, выкрутите ключом на «10» болт крепления к штоку КПП.
- При помощи шила или тонкой отвертки извлеките старый сальник. Осмотрите его на предмет повреждений.
- Установите новый сальник, используя для запрессовки трубку или большую шайбу.
После замены установите пыльник. Оцените состояние кардана: если люфты у него слишком большие, то потребуется замена. После проведения всех работ обязательно проверьте правильность включения скоростей.
Замена
Если шаги, описанные в предыдущем абзаце, вам не помогли, то, скорее всего, вам нужно заменить предмет своими руками.
Что вам нужно?
Чтобы заменить кулисы, вам нужно подготовить все, что вам может понадобиться для завершения работы:
- Прямо новые сцены для ВАЗ 2110;
- Отвертка;
- Боковые ножи;
- Набор ключей;
- Трещотка;
- Смазка Литол-24.
Пошаговые инструкции
- Сядьте в салон вашего автомобиля ВАЗ 2110 и с помощью отвертки снимите декоративную крышку рычага переключения передач. Потяните рычаг переключения вверх и снимите его с защитной крышкой.
- Извлеките гаечный ключ на «10» и, в свою очередь, отвинтите две гайки крепления, а также болт, который фиксирует накладку кронштейна задней коробки передач.
- Затем доведите ключ до «13» и открутите гайку, крепящую вал рычага переключения передач. Затем открутите винт, которым крепится ось. Вам может понадобиться храповик здесь.
- Снимите мост. Затем снимите набор втулок с селектора коробки передач (чтобы не потерять их при замене).
- После этого необходимо разобрать реактивную тягу с подушки за кулисами. Для этого возьмите гаечный ключ, с помощью которого вы будете удерживать гайку сверху, а с помощью гаечного ключа до «13» открутите его, как показано на фото.
- Тогда вам нужно снять лицевую часть пола и пластиковую консоль. Иначе вы не сможете разобрать крылья. Для этого откручиваем все болты по периметру консоли. Сняв верхнюю часть консоли, сделайте то же самое с нижней. Будьте осторожны, чтобы не повредить жгуты.
- Затем ослабьте четыре винта, которые крепят переключатель коробки передач к кузову автомобиля.
- Заберитесь под днище автомобиля и с помощью клавиши «13» открутите гайки кронштейна подушки, затем снимите сам кронштейн.
- Снимите шарнир с помощью рычага переключения передач. Тщательно осмотрите все элементы устройства. Вполне возможно, что была изношена только подушка, а сама занавеска еще не прослужила. Затем замените подушку и замените предмет.
- Если сам компонент трансмиссии выходит из строя, то есть на нем хорошо видны механические повреждения, например, сломанные уши, крылья следует заменить на новые. Перед этим смажьте все абразивные элементы, включая рычаг переключения передач, моторным маслом или литолом-24, чтобы не скрипеть.
Зачем менять карданчик
На всех без исключения автомобилях ВАЗ 2108-2110 имеется сильный люфт в кулисе КПП, вследствие этого получаем, нечеткое переключение передач:
- С уверенностью можно сказать — это болезнь либо недостаток всех автомобилей этой марки
- Причиной такой «болезни», является родной карданчик кулисы КПП
- Если вы хотите устранить такой недостаток – тогда наша инструкция, поможет вам уменьшить люфт кулисы и повысить комфортное переключение передач (тем более вы этого добивались заменой кулисы)
- С начала необходимо попасть на автомобильный рынок и приобрести там (либо в магазине запчастей) короткоходный карданчик от автомобиля лада Калина
- Следует брать его в комплекте с пыльником, потому что от стандартного кардана пыльник не подходит
Инструменты
После покупки ищем в своем арсенале инструмент, необходимый для замены карданчика. С этим я думаю, проблем не возникнет, потому что данная операция требует минимального количества инструмента:
Накидные ключи «13» две штуки, плюс один ключ«10»
Молоток
Отвертка
Для замены карданчика кулисы необходимо заехать на яму либо эстакаду
Помощник, желательно трезвый пригодиться вам в конце работы, тогда, когда вам необходимо будет отрегулировать идеальное положение рычага передач
С помощью двух ключей «13» распустите хомут, расположенный на тяге привода переключающего передачи и стяните привод со штока переключения передач
Затем отверткой оттяните пыльник карданчика к коробке, в принципе лучше его вообще снять, чтобы не мешал (ведь он нам более не пригодится)
Затем берем ключ на «10» и откручиваем болтик — фиксирующий карданчик
Затем берем молоток и не очень сильными ударами сбиваем карданчик с вала и стягиваем пыльник (в случае если не решились убрать его сразу)
И так, пол дела у нас уже сделано, а в случае необходимости мы можем поменять и сальник на валу выбора передач (пока к нему удобно добраться)
Натяните новый пыльник на вал
После этого устанавливаем карданчик от Калины, прикручиваем его болтиком, следует обратить особое внимание, чтобы болтик точно совпал со специальным углублением на валу
Затяните болтик, затем натяните пыльник на карданчик
После этого тягу привода, переключающего передачи одеваем на шток, однако при этом хомут не затягиваем
В случае, если рычаг тяги не получается надеть на карданчик (обычно более длинный шток мешает), тогда подпилите (укоротите) шток карданчика, только не переусердствуйте
Пора пригласить помощника, который будет сидеть в салоне и выставлять рычаг переключающий передачи в оптимальное положение
Для этого он сначала пусть установит рычаг по центру, затем отводит немного вправо, и удерживает его в таком положении
В это время Вы затягиваете хомут
Только после этого необходимо проверить, как стали переключаться передачи
Выполняем замену
Завершайте сборку, вот все нюансы, которые следовало учесть, дополнительно посмотрите видео, если вы чего-то не поняли, приводим таблицу для наглядности.
Источники
- https://luxvaz.ru/vaz-2109/324-zamena-kulisy.html
- https://xn--80aaecx8b1a.xn--p1ai/замена-сальника-штока/
- https://masteravaza.ru/korobka-peredach/kulisa/korotkaya-kulisa-vaz-2109-973
Lada 2108 ***Сафари*** › Logbook › Замена заводского карданчика кулисы КПП
На автомобилях ВАЗ-2108, ВАЗ-2109, ВАЗ-21099, ВАЗ-2110 большой люфт в кулисе КПП и как следствие, нечеткое переключение передач не является редкостью. Можно сказать, что это болезнь или недостаток автомобилей этих марок. И причина этой «болезни», в первую очередь, кроется в родном карданчике кулисы КПП. Если Вам интересно, как устранить этот недостаток, уменьшить люфт в кулисе и повысить комфорт переключения передач на своей «восьмерке», «девятке» или «99», то читаем статью дальше…
Для начала, Вам придется купить на рынке или в магазине сам короткоходный карданчик кулисы КПП для автомобиля ВАЗ-1118 «Калина». Покупать его следует в комплекте с пыльником, так как пыльник от стандартного карданчика не подойдет (смотрим фото 1). После покупки сверяем свой арсенал инструмент с перечнем инструмента, необходимого для замены кардана кулисы КПП (Лада Калина). Думаю, с этим проблем не будет, так как для данной операции список инструмента минимален: два накидных ключа на «13», один ключ на «10», отвертка и молоток. Работу по замене карданчика кулисы КПП следует проводить на смотровой яме, подъемнике или эстакаде. Трезвый помощник Вам так же может пригодиться, например, в конце работы, когда надо будет отрегулировать оптимальное положение рычага переключения передач.
Дальше, по пунктам:
При помощи двух ключей на «13» распускаем хомут на тяге привода переключения передач и стягиваем привод со штока механизма переключения передач.Дальше, отверткой оттягиваем пыльник к коробке, в принципе его можно вообще удалить, чтоб не мешал. И ключом на «10» откручиваем болт — фиксатор на кардане и после этого аккуратно, не сильными ударами молотка, сбиваем карданчик КПП с вала и стягиваем пыльник, если Вы его не удалили раньше
Все, полдела сделано, при необходимости можно поменять сальник вала выбора передач.Установку короткоходного кардана кулисы КПП «Калина» производим в обратной последовательности: надеваем пыльник, на вал сажаем карданчик (обращаем внимание на то, чтобы болт – фиксатор точно совпал с углублением на валу), затягиваем болт и надеваем пыльник на кардан кулисы. Тягу привода переключения передач одеваем на шток кардана, но не затягиваем хомут.Приглашаем помощника, который садится в салон и выставляет рычаг переключения передач в оптимальное положение – сначала устанавливает рычаг по центру и отводит его немного вправо, удерживаем рычаг в таком положении, пока Вы затягиваете хомут
После этого проверяем, как теперь переключаются передачи.Думаю, что комфорт и четкость переключения передач, которые появятся на Вашем автомобиле после установки короткоходного кардана кулисы КПП от «Калины».
Price tag: 100 UAH Mileage 18000 km
Принцип работы и способ изготовления
Короткоходная кулиса коробки передач ваз 2109 пришла от профессионалов гоночного автомобильного спорта, вы согласитесь, какой это спорт, если времени на переключение передач тратится много. Что же дает такая кулиса:
- Исключительно благодаря ней, переключения для вас становятся гораздо приятнее, а ход рычага значительно сокращается практически в два раза, полученный от установки результат просто невероятный
- Поэтому сообразительные люди подхватили эту «тему» и пустили кулису в «массы»
- Получается, сегодня продается кулиса короткоходная ваз 2109 практически в каждом магазине автомобильных запчастей
- Разумеется, цена, существенно завышена, однако это не препятствие для большинства автомобилистов
- Здесь нет ничего удивительного, ведь кулиса того стоит, я сам, как и многие владельцы машин, готов был приобрести ее, настолько мне понравилась короткая кулиса коробки передач ваз 21093.
- Однако как только я увидел её устройство и понял в чем главный смысл тюнинга, я передумал за неё платить, потому что возможно сделать такую своими руками всего за какие-нибудь пол часа работы
- Что у меня получилось — смотрите сами, Сейчас расскажу в нескольких словах о том, как весь механизм работает, так же смотрите фото
Приведенная мной схема позволит вам понять, как работает кулиса короткоходная на ваз 2109:
- Отрезок «О» — «F» — отображает нижнюю и верхнюю точки вашего стандартного рычага, установленного в нейтральное положение
- Для того, чтобы вам включить передачу, необходимо будет передвинуть тягу, соединенную с рычагом (точка «B» — точка их соединения) — в точку «А»
- Ручка рычага, переключающего передачи при этом передвинется в точку «Е»
- Вы ведь понимаете, что задача у нас — сократить «E»-«F» расстояние переключения, которое проходит ручка
- А для этого нам необходимо увеличить длину рычага до точки «H», что позволит нам приподнять тягу на такое же расстояние (отрезок «C»-«D» равен отрезку «A»-«B»)
- Получается, что рычагу, переключающему передачи, придется проходить меньший путь, вам в таком случае не придется тянуться либо «искать по всему салону» нужную передачу, и её рычаг
Лада 21099 GTFO › Бортжурнал › Настройка кулисы или поиск задней передачи .
Доброго времени суток, сегодня я вам расскажу какого настраивать кулису без ямы в десять часов вечера